
项目说明:
项目类型:民宿
建筑规模:300㎡
设计费:2,000,000元
悠然客栈位于大理某条不知名巷子深处。

大理古城的各个小巷里,总是曲径通幽。例如悠然客栈,藏在古城深处,要沿着蜿蜒的小路走上好一会儿,看见客栈纯粹洁白的墙壁和优雅干净的木材元素,才明白曲尽其巧。


客栈虽然只有四间客房和一间公共阳光房,但是整个客栈的外观设计和内饰做工都用到了极多的木材元素,清透自然的木头使得客栈在兼具整体设计美感,呈现出幽雅温柔的感知得同时,也以大理温润的气候应运而生。


值得一提的是,如今安然立在客栈各个角落的木头,都是当日做了二十多年木头活儿的老手艺人辛苦地亲手推制而来的,这些经手推削的木头,赋予了果念更深厚的气息。



客栈主人和他的客栈一样淡然不焦躁,他是重庆人,来过大理三次,第三次的时候就再也没有走了。这个年轻的小伙子喜欢上了大理悠闲散漫的时光,于是决定留下来过自己心水的生活,于是我们得以看到今天出色的客栈。




客栈的住宿品质很高,这一点是毋庸置疑的。凡贴身或者用到客人身上的,都是在能力范围内找到最好的。sheridan的毛巾、浪凡的洗浴用品,贝佳斯的其他用品,金可儿的床垫,祖马龙的香薰,阿原的手霜,伊索的洗手液,其实这些都远远超出房价内应该提供的,但是用客栈主人的话来说就是:不玩虚的,直接用到客人身上的,才是实际的。
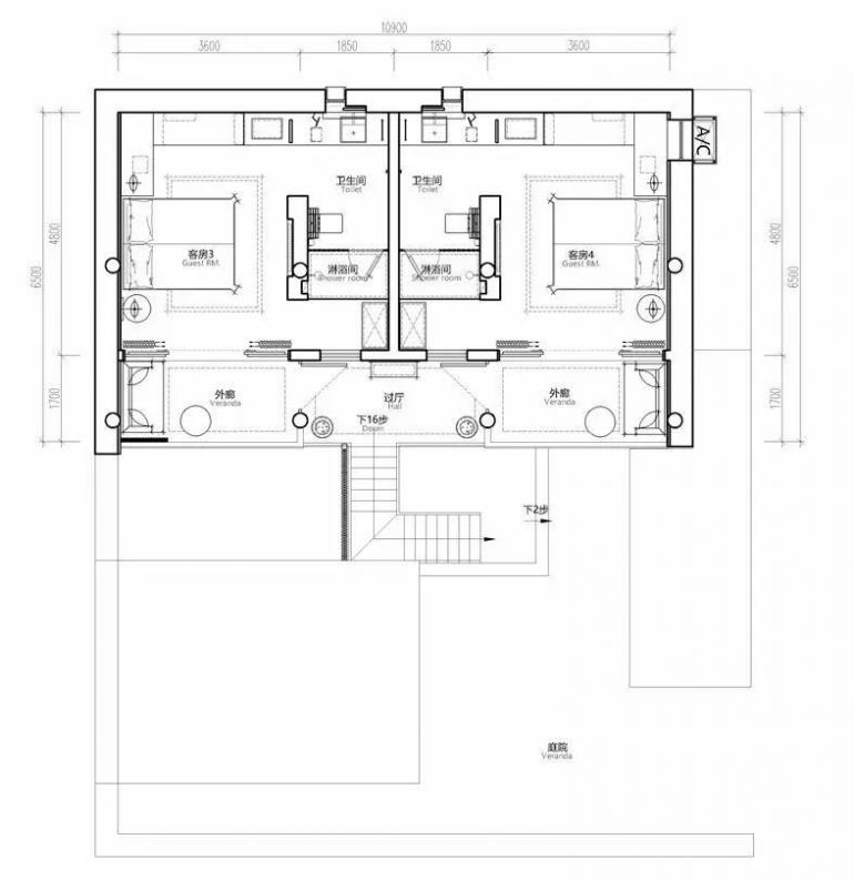
一层平面图

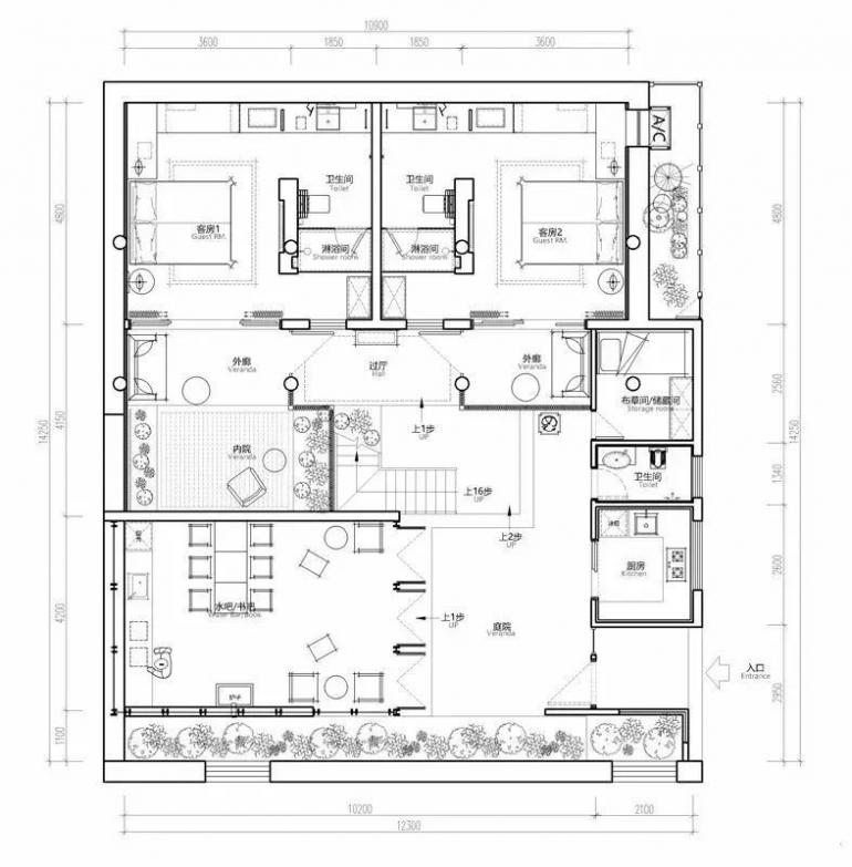
二层平面图
青海建筑设计院,青海建筑设计公司,青海市政设计院